Tez singan pardalar
Ta'rif
Texnik parametrlar
Tez singan pardalar
Termofal singan pardalar tizimi haqida
A Tez singan pardalarTermal ko'prikni minimallashtirish va binolarning energiya samaradorligini oshirish uchun ishlab chiqilgan rivojlangan jismlar tizimi. Bu erda batafsil taqsimlash:
Termsiz singan pardalar devor nima?
Parda devori - bu, odatda alyuminiy ramka va oynalardan yasalgan binoning tarkibiy qismini emas. ATermsiz buzilganChiroq va tashqi ko'rinishi o'rtasida ichki alyuminiy komponentlar o'rtasida issiqlik uzatishini kamaytirish uchun to'siqni (termal tanaffusni) o'z ichiga oladi.
Asosiy xususiyatlar va imtiyozlar:
- Termal tanaffus materiallari
Kam o'tkazuvchan material (ko'pincha poliamid yoki poliuretan) ichki va tashqi alyuminiy freymlari o'rtasida joylashtirilgan.
Issiqlik oqimini kamaytiradi, izolyatsiyani yaxshilash (U-qiymati).
- Energiya samaradorligi
Yozda qishda issiqlik va issiqlik daromadini minimallashtiradi.
Qurilish kodlari (masalan, Ashra, Lid, passiv uy standartlari) bilan uchrashishga yordam beradi.
- Kondensatsion qarshilik
Ichki yuzalarni xona haroratiga yaqinlashtirish orqali kondensatsiyani oldini oladi.
- Tarkibiy yaxlitlik
Issiqlik ko'rsatkichlarini yaxshilashda kuchni saqlaydi.
- Dizayn moslashuvchanligi
Turli xil tugatish va profillarda (o'rnatilgan, birlashtirilgan, birlashtirilgan yoki yarim birlashtirilgan tizimlarda mavjud.
Arizalar:
- Yuqori tirbandlik mahsulotlari
- Turar joy minoralari
- Sovuq iqlimni (termal turishni oldini olish uchun)
- Barqaror \/ yashil binolar
Transperalsiz singan parda devorlariga taqqoslash:
|
O'ziga xos xususiyat |
Termsiz buzilgan |
Termissiz buzilgan |
|
Issiqlik o'tkazuvchanligi |
Past (yaxshiroq izolyatsiya) |
Yuqori (ko'proq issiqlik uzatish) |
|
Energiya samaradorligi |
Baland |
Past |
|
Kondensatsion xavf |
Kamaygan |
Yuqori |
|
Narx |
Yuqori boshlang'ich narx |
Asosiy boshlang'ich narx |
|
Muvofiqlik |
Zamonaviy energiya kodlari bilan uchrashadi |
Qat'iy standartlarga javob bermasligi mumkin |
Guangya loyihasi holati:G'arbiy Karowoon Qonuni Hongkong binosi
Mahsulot:Parda devor va deraza devorlari
Uchastka maydoni: 14000㎡

Mahsulot spetsifikatsiyasi
| Brend nomi | Glanya | Sirtni davolash | Anazlangan, chang fluonokarbon qoplami, elektroforezis va boshqalar ... |
| Tur | Pardaning devor tizimi | Rang | Rangni sozlash (kumush, bronza, shampan, titan, nikel, oltin sarg'ish ...) |
| Model raqami | Bir qator yashirin ramka pardasi devor tizimi | Uzunligi | Moslashtirilgan |
| Kelib chiqishi | Foshan Guangdong Xitoy | Alyuminiy qalinligi | Asosiy profil devor qalinligi 3. 0 mm |
| Material | Alyuminiy qotishma \/ shisha | Shisha | 6\/8\/10 \/ 12MM, bitta temed stakan \/ laminatlangan shisha \/ dublli sirlangan shisha \/ past shisha |
| Fe'l-atvor | T3 - T8 | Guvohnoma | ISO9001 CQC sayg'oqlobalati as2047 |
| Ariza | Turli qurilish turlari uchun mos | Sozlash | Logotip \/ qadoqlash \/ grafik |
| Shakl | Talab sifatida | Qadoqlash tafsilotlari | Har birida kichik to'plamlarga qo'ng'iz paxta. Kristalli plastik sumkaga o'ralgan. Asosiy to'plamlarni tuzatish uchun yog'och bar. Tepaga yuklash. Pivylement tomonidan idishda yuklash. |
| Qotishma yoki yo'q | Qotishma | Yetkazib berish vaqti | {{0} kunlar |
| Ishlov berish xizmati | Egiluvchan, ezish, payvandlash, punching, kesish |
Xususiyat va dastur
Guangya tereral ravishda buzilgan pardalar 6mm +12 mm ni ishlatadi. Yopiq chiroqni oshirish uchun to'liq osilgan dizayn. Uning xususiyatlari asosan oddiy va saxiy ko'rinishga, engil va shaffof vizual ta'sir va xavfsiz va ishonchli tarkibiy dizaynga kiradi.
Termsiz singan pardalarning foydasi
Tez singan pardalar devorlari katta, bitta sirli parda devorlariga qaraganda energiya tejamkor. Shuningdek, ular isitish va sovutish xarajatlarini kamaytirishga va kondensatsiyani muslodlar ichki qismida shakllantirishiga to'sqinlik qilishi mumkin.
Har xil me'moriy uslublar va funktsional ehtiyojlar uchun javob beradi.

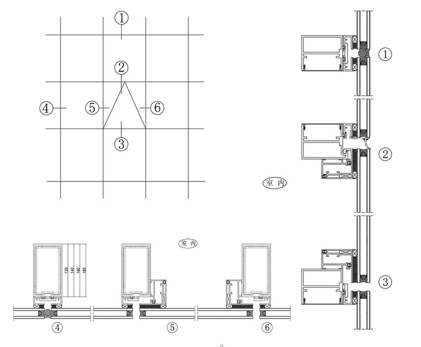
Tuzilish chizmasi
Bir qator yashirin ramka pardasi devor tizimi

Ishlab chiqarish qayta ishlash

Qadoqlash va jo'natish

TSS
Savol: Siz qaysi to'lov shaklini qabul qilishingiz mumkin?
Javob: T \/ T, Western Union, PayPal va boshqalar. Biz har qanday qulay va tezkor to'lov muddatini qabul qilamiz.
Savol: Sizda qaysi sertifikat bor?
Javob: ISO9001 CQC sayglobal, biz siz xohlaganingizcha qilamiz.
Savol: Sizda sinov va audit xizmati bormi?
Javob: Ha, biz mahsulot uchun belgilangan sinov hisobotini va auditorlik hisobotini olishda yordam berishimiz mumkin.
Savol: Biz sizning agentingiz bo'la olamizmi?
Javob: Ha, bu bilan hamkorlikka xush kelibsiz. Bizda hozir bozorda katta reklama bor. Tafsilotlar uchun bizning chet ellik boshqaruvchimiz bilan bog'laning.
Savol: Yetkazib berish muddati nima?
Javob: Bizning oddiy etkazib berish muddati - Foshan. Shuningdek, biz FOB, CFR, CIF, DDP va boshqalarni qabul qilamiz. Sizga etkazib berish xarajatlarini taklif qilamiz va siz siz uchun eng qulay va samarali bo'lgan birini tanlashingiz mumkin.
Savol: Qaysi transport yo'lini bera olasiz?
Javob: Biz dengiz orqali etkazib berishni ta'minlashimiz mumkin.
Savol: Sizdan keyingi xizmatda nima?
Javob: Bizning sifatingiz kafolati 5 yil. Har qanday sifat muammosi mijozlarning qoniqishi uchun hal qilinadi.
Savol: Siz dizaynda yordam bera olasizmi?
Javob: Ha, oddiy dizayn, maxsus dizaynni to'lash kerak.
Savol: Sizning fabrikangizda qaysi mashinalar mavjud?
Javob: Besh o'qning ishlov berish markazi, platforma, CNC ikki tomonlama arra, ma'lumotlar tegirmoni, uchta ekish mashinasi, argon arc payvandlash markazi, giyohvand moddalar mashinasi, ish stoliga tegish mashinasi.
Savol: Sizning fabrikangiz qachon o'rnatilgan?
Javob: 2006 yildan beri
Issiq teglar: Tez singan pardalar devor, Xitoy termallangan pardali devor ishlab chiqaruvchilari, zavod
Oldingi
Ma'lumot yo'qKeyingi2
Alyuminiy parda devorlari tizimlariSo'rov yuborish








